Le quartier, l'espace accessible ...

" J'aime amener mes petits enfants à l'aire de jeux, je m'y sens chez moi "

" Je voudrais pouvoir me promener sans être collé aux voiture "

" Depuis que les arbres et les arbustes ont pris placent, les oiseaux sont revenus  "

" Je voudrai revoir l'ancien cour d'eau qui traversait la rue, il y a bien longtemps "

 

 

A chaque usage, son aménagement. Atelier Galium vous accompagne dans vos souhaits et aura à cœur de transmettre les notions du vivre ensemble et du développement durable.

Rue du Mal Leclerc, parvis de l'école Monod/Camus et place F. Mitterrand - ST-Pierre-Lès-Elbeuf

2024 // Le projet de réaménagement de la rue du Maréchal Leclerc et du parvis du groupe scolaire Monod - Camus à Saint-Pierre-Lès-Elbeuf vise à transformer cet espace en un lieu plus durable, accueillant et adapté aux usages actuels. La désimperméabilisation des sols constitue un axe central, permettant une meilleure gestion des eaux de pluie et contribuant à la lutte contre les îlots de chaleur.

 

Une attention particulière est portée à la diversité végétale, avec l’introduction de nombreuses essences locales, favorisant la biodiversité. Le projet accorde également une place importante aux élèves du groupe scolaire, à travers la création d’un espaces libre, de repos et sécurisés. Enfin, la piétonnisation du secteur améliore significativement la qualité de l’espace, en le rendant plus agréable et apaisé pour les usagers, notamment les enfants et les familles.

Service simple et pro

Créer un site Internet
Créez votre site gratuitement avec

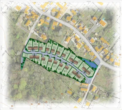
Quartiers d'habitations

Dans le cadre de la réalisation d’un permis d’aménager, l’Atelier Galium joue un rôle central en orchestrant une vision d’ensemble qui conjugue harmonieusement les exigences réglementaires, les dynamiques du site et les aspirations du projet. Fort de sa sensibilité aux paysages, aux écosystèmes et aux usages, l’Atelier imagine des espaces à la fois fonctionnels, durables et porteurs de sens, en veillant à préserver la biodiversité, valoriser l’existant et anticiper les évolutions futures. Son intervention, à la croisée de l’urbanisme, de l’architecture et de l’écologie, se matérialise par la production de documents graphiques, techniques et narratifs qui traduisent avec clarté et justesse les intentions d’aménagement. Ainsi, l’Atelier Galium contribue à inscrire le projet dans une logique de pérennité et de bien commun, en façonnant des lieux vivants, ouverts et respectueux du territoire.

Suivez-moi

Pour ne rien manquer